Перейти к основному содержанию
Объединяем лучшее, воплощаем в надежное!
Объединяем лучшее, воплощаем в надежное!

010000, РК, г. Астана,
ул. Динмухамеда Кунаева 33,
офис 1003
Метка на карте

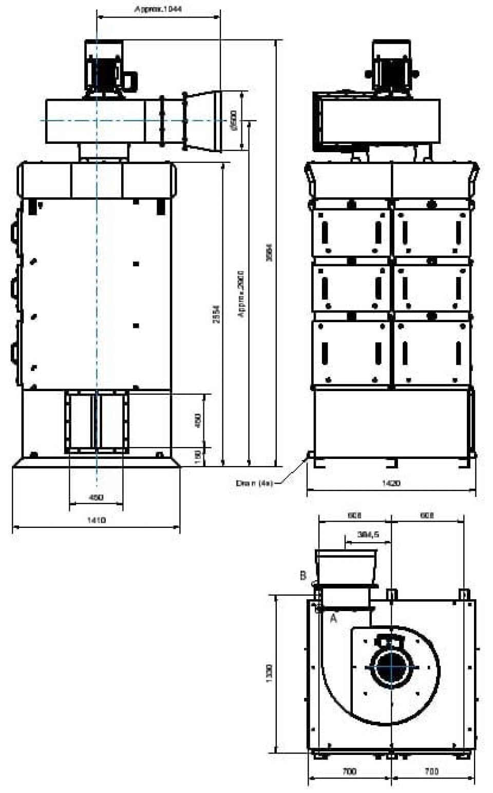
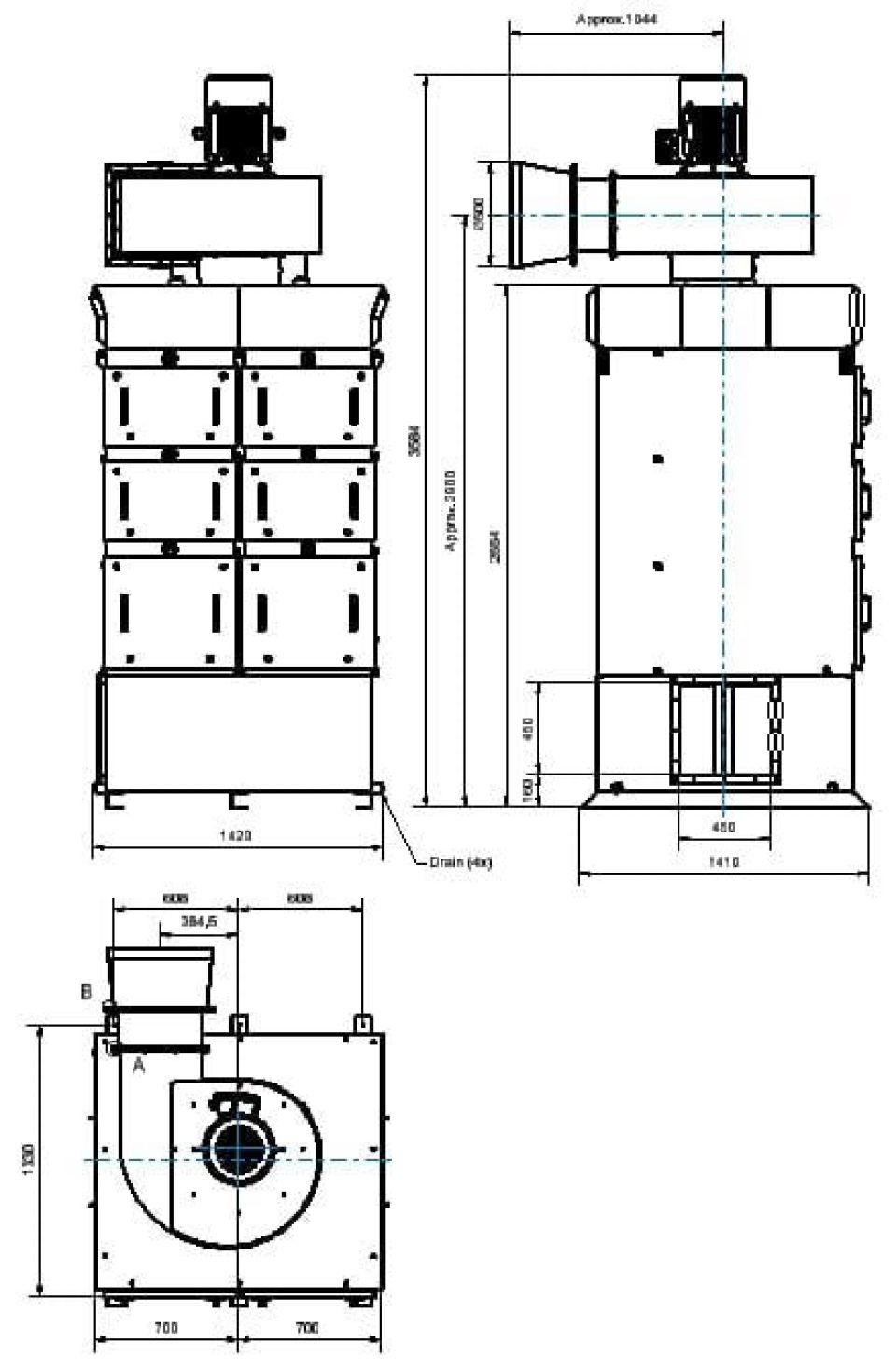
OMF 2×4000 SM

Фильтры-отделители масляного тумана Nederman FibreDrain® серии OMF предназначены для работы с большими объёмами эмульсионного тумана при непрерывной эксплуатации. Они разработаны с акцентом на высокую эффективность фильтрации при низких эксплуатационных расходах.

Установка Nederman FibreDrain® OMF 2×4000 в стандартном исполнении имеет трёхступенчатую систему фильтрации, где первые две ступени состоят из фильтрующих кассет с применением технологии Nederman FibreDrain®. Компания Nederman предлагает широкий ассортимент фильтров различных типов для самых разных областей применения. Третья ступень — HEPA-фильтр класса H13 с эффективностью 99,95 % по MPPS в соответствии с EN 1822. Все башенные установки Nederman FibreDrain® OMF конструктивно подготовлены к установке предварительного фильтра. Модель OMF 2×4000 оснащена радиальным вентилятором верхнего расположения.

  • Три ступени фильтрации, опциональный предварительный фильтр

  • Манометры для контроля перепада давления на каждой ступени фильтрации

  • Слив: 4 патрубка 1 1/2″

  • Система подвески вентилятора с виброизоляцией

TechnicalData
Сертификация CE
Стандарт 2009/125/EC
Объем (для перевозки) (м³) 10.6
Уровень шума (дБ(А)) <70 dB(A) @1,5 m from service side with optional fan enclosure and silencer
Класс защиты IP55
Эффективность фильтрации (%) 99,95
Установка Снаружи помещения
Материал Sheet metal, painted both in- and outside.
Метод очистки фильтра Self-Draining
Рабочее давление (кПа) Max 4500 Pa
Производительность (макс. воздушный поток м3/час) 8000
Рабочая температура 60 deg C (ilimited by filter)
Напряжение (В) 400/690
Частота (Гц) 50
Количество фаз 3
Количество фильтроэлементов 12
Сила тока (А) 19,5 / 11,3
Цвет NCS-S 1005 B20G
Вес (кг) 1140
Мощность (кВт) 11
Пояснение к техническим данным Plus 4 optional filter elements.