Перейти к основному содержанию
Объединяем лучшее, воплощаем в надежное!
Объединяем лучшее, воплощаем в надежное!

010000, РК, г. Астана,
ул. Динмухамеда Кунаева 33,
офис 1003
Метка на карте

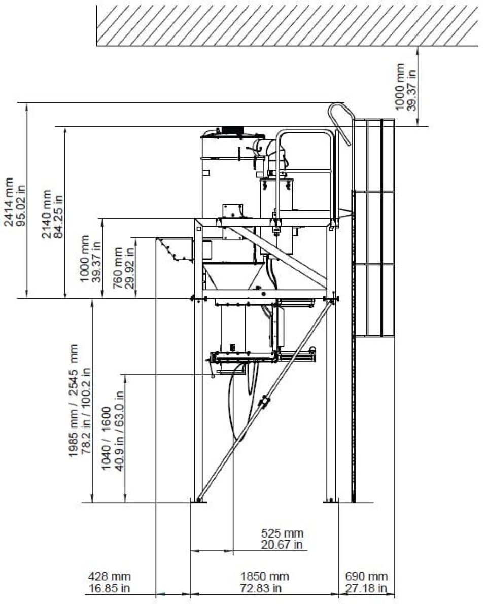
Flexfilter EX изготовлен таким образом, чтобы выдерживать избыточное давление от потенциального взрыва и оснащен взрыворазрядной панелью. Пагубные последствия взрыва сводятся к минимуму путем сброса избыточного давления и пламени через эту панель в безопасную зону. Все модульные компоненты Flexfilter EX полностью электрически соединенны и заземлены. Все электрооборудование классифицировано по классу взрывоопасной пыли для EX. Модуль оснащается либо стандартным 70л контейнером с комплектом для балансировки давления с бункером, что позволяет использовать проводящий пластиковый пакет для быстрого удаления собранной пыли, или устройством полностью автоматической разгрузки с токопроводящим большим мешком с заземляющим кабелем для систем пылеудаления большой производительности. Контрольный фильтр позволяет использовать вакуумные блоки, не рассчитанные на взрывоопасную пыль.

Разрешенные материалы:
Крайне важно знать свойства удаляемого материала. FlexFilter EX предназначен для сбора материала для сбора материала со следующими свойствами:

— Класс взрыва пыли: St1 и St2
— Pmax: ≤10 бар
— MIE (минимальная энергия воспламенения) > 1 мДж
— MIT (минимальная температура воспламенения)> 205 ° C

Маркировка продукта:
FlexFilter EX — согласно директиве ATEX 2014/34/ЕС обозначается: II 3D Ex h IIIC T130ºC Dc
-10ºC≤Ta≤40ºC
Nederman 19.HB01X

  • Современная система фильтрации для удовлетворения ваших текущих и будущих потребностей
  • Оборудована панелью для снятия взрыва
  • Стандартный лоток 70L с антистатическим полиэтиленовым пакетом или проводящий объемный мешок, установленный на полностью автоматическое устройство опорожнения
  • Designed for ISO 21904 compliance
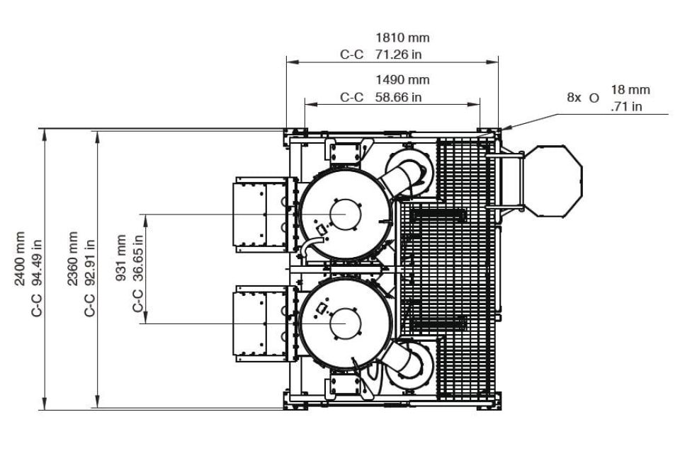
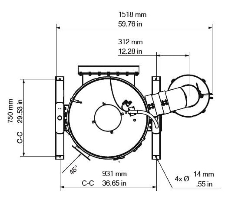
TechnicalData
Сертификация CE, EX
Стандарт 2014/34/EC
Установка Внутри помещения
Материал Листовой металл
Подходит для взрывоопасной пыли Yes
Метод очистки фильтра Продувка обратным потоком воздуха
Применение пыль, гранулят, грит, дым
Объем пылевого контейнера (л) 70 л (не для высокой стойки)
Площадь фильтра (м²) 12 (за фильтр)
Производительность (макс. воздушный поток м3/час) 1600 (за фильтр)
Тип фильтра Рукавный фильтр
Фильтрующий материал Conductive (<10ˆ8 Ω) polyester. Class M according to EN 60335-2-69