Перейти к основному содержанию
Объединяем лучшее, воплощаем в надежное!
Объединяем лучшее, воплощаем в надежное!

010000, РК, г. Астана,
ул. Динмухамеда Кунаева 33,
офис 1003
Метка на карте

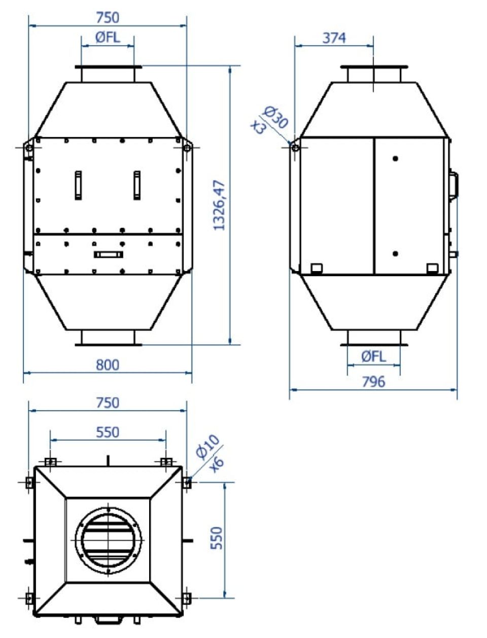
The safety filter is typically used in high vacuum application and is positioned between the filter and the fan to protect the fan against larger particles.

The housing is made of a welded steel structure painted in blue paint RAL 5009.
The safety filter is equipped with H13 class filter cartridges according to EN 1822 which are mounted in frames and tightly closed by bolted doors. The flanges are standardized FL flanges.

  • Can be mounted both horizontally and vertically
TechnicalData
Установка Внутри помещения, Снаружи помещения
Материал Painted steel RAL 5009
Площадь фильтра (м²) 22-44
Производительность (макс. воздушный поток м3/час) 2700-5400
Рабочая температура Max. 80°C
Connection FL