Перейти к основному содержанию
Объединяем лучшее, воплощаем в надежное!

010000, РК, г. Астана,
ул. Динмухамеда Кунаева 33,
офис 1003
Метка на карте

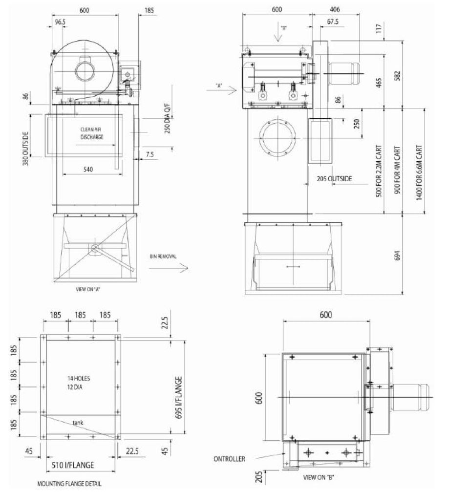
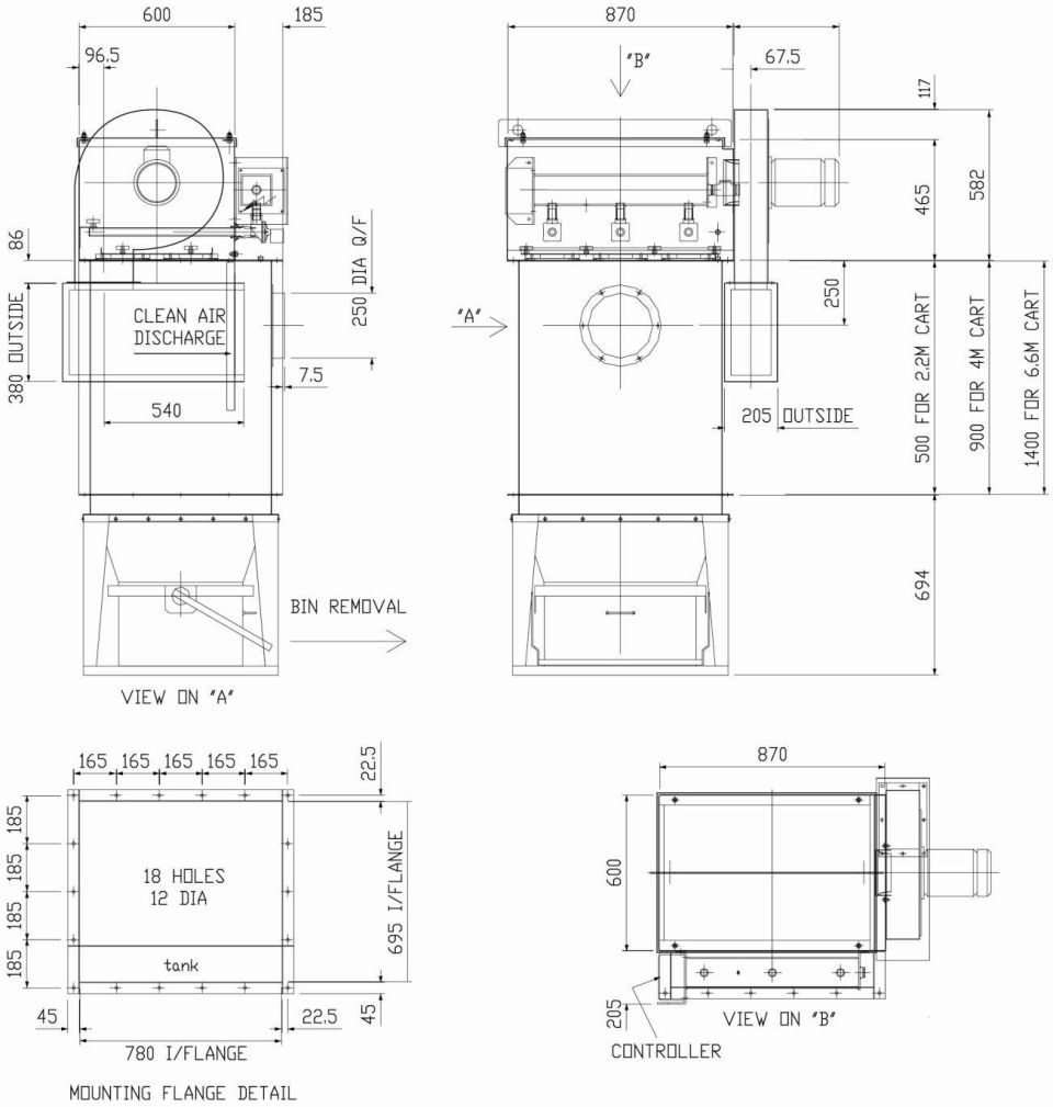
MJC,mini картриджный фильтр

Подходит для различных условий применения, которые генерируют небольшие и средние объемы пыли. Серия компактных реверсивных струйных картриджных фильтров MJC Mini была разработана для непрерывной работы в области фильтрации промышленных процессов и пылеулавливания — с использованием запатентованной Nederman технологии картриджей UniClean для максимально эффективной очистки и срока службы.

Ключевая особенность
Стандартный фильтр от 4 до 40 м2 (43-430 футов)
Прочная стойкая стальная конструкция с защитой от атмосферных воздействий
Встроенные вентиляторы с экономией пространства от 0,75 до 3,0 кВт (1-4 часа)
Вентилятор высокого давления мощностью 4,0 кВт (5 л.с.)
Характеристики ATEX для пылей St1, St2 и St3
Встроенная камера предварительного разделения, воздушный фильтр с поперечным потоком / потоком воздуха
Модульные взаимозаменяемые сборки

Типичное управление пылью и процессы:

  • Обработка материалов — транспортировка, просеивание, просеивание, смешивание, вентилирование бункера / силоса
  • Дробь, песок и пескоструйная обработка
  • Сварка и резка
  • Химические, пластмассовые и фармацевтические порошки
TechnicalData
Сертификация CE, EX
Требования к сжатому воздуху 5 to 5,5 bar
Установка Снаружи помещения, Внутри помещения
Материал Прочная конструкция из стали толщиной 2,5 мм, полностью свариваемая и окрашенная
Подходит для взрывоопасной пыли Yes
Метод очистки фильтра Импульсная продувка
Применение пыль, дым
Рабочее давление (кПа) Перевалка сыпучих материалов — транспортировка, просеивание, просеивание, смешивание, вентилирование бункера / силоса
Объем пылевого контейнера (л) 75 или 150 л
Площадь фильтра (м²) От 4 до 40
Производительность (макс. воздушный поток м3/час) 3600
Рабочая температура От -20 до 80 ° С.
Тип фильтра Картриджный фильтр