Перейти к основному содержанию
Объединяем лучшее, воплощаем в надежное!

010000, РК, г. Астана,
ул. Динмухамеда Кунаева 33,
офис 1003
Метка на карте

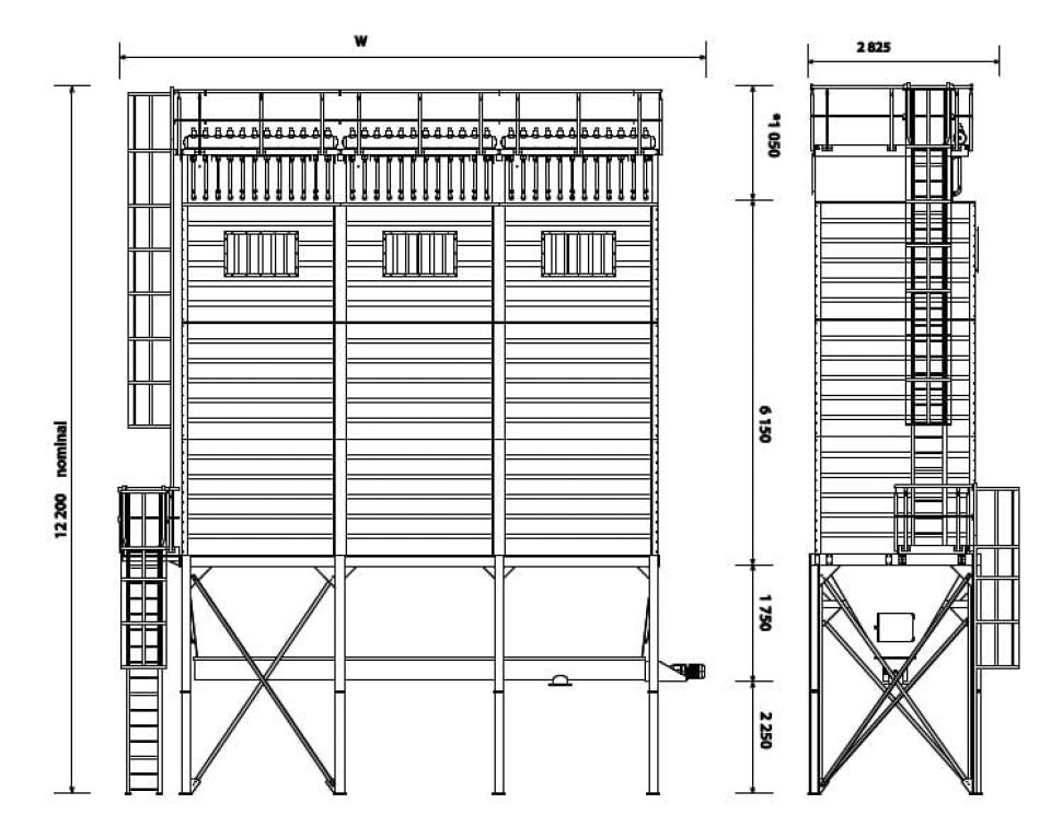
MJB-H представляет собой инновационный ряд прочных, универсальных трубчатых рукавных фильтров, которые основываются на опыте хорошо зарекомендовавших себя рукавных фильтров MJB.
Объединив преимущества двухступенчатых очистительных клапанов погружного типа с запатентованной технологией UniClean, максимальная эффективность очистки достигается при очень низком потреблении энергии и минимальном обслуживании.
Весь доступ для обслуживания находится от верхней части устройства.
Модульная конструкция с несколькими вариантами сборки болтов оптимизирована для транспортировки по дороге или морским контейнером.
Он также обеспечивает максимальную гибкость на месте, в зависимости от имеющихся возможностей.
Размеры фильтров от 295 м² до 1770 м² доступны в виде предварительно собранных блоков.
Модульная конструкция позволяет собирать более крупные блоки, а также, при необходимости, расширять существующие блоки.
Особенности
Прочная стальная конструкция
Универсальная модульная конструкция
Прогноз погоды для открытых мест
Вариант грязной воздушной камеры с плоской упаковкой для эффективной транспортировки автомобильным или морским контейнером.
Может быть расширено или перемещено, если потребуется
Эффективная очистка с использованием запатентованной технологии UniClean
Интегральная секция предварительного разделения
Расход воздуха на входе / поперечном потоке для максимальной загрузки пыли
Низкое техническое обслуживание, с доступом от устройства вверх
Доступны две длины мешков
Более высокие температурные параметры, включая тепловое нагревание и изоляцию
ATEX соответствует взрывоопасной пыли «

TechnicalData
Сертификация CE, EX
Установка Внутри помещения
Метод очистки фильтра Compressed air
Применение пыль
Площадь фильтра (м²) 295 to 1770
Производительность (макс. воздушный поток м3/час) 190000
Рабочая температура Max. 220˚ C
Тип фильтра Рукавный фильтр