Негізгі мазмұнға өту
Ең жақсысын біріктіріп, оны сенімдіге айналдырамыз!

010000, ҚР, Астана қ.,
ст. Дінмұхамеда Қонаев 33,
кеңсе 1003
Картадағы белгі

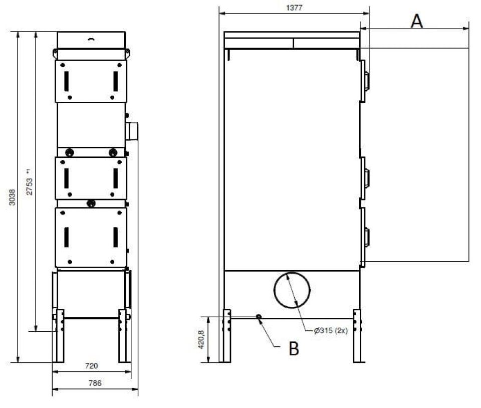
OSF 1500 FC

Nederman OSF май тұманының сүзгілері үздіксіз жұмыс кезінде үлкен көлемдегі таза мұнай тұманын өңдеуге арналған. Олар жоғары тиімді сүзгілеуге және төмен пайдалану шығындарына назар аудара отырып жасалған.

Nederman OSF 1500FC стандартты үш сүзу сатысын ұсынады, олардың алғашқы екеуі Nederman FibreDrain® технологиясы бар сүзгі картридждерінен тұрады. Nederman әртүрлі қолданбаларға қолайлы сүзгі түрлерінің кең ауқымын ұсынады. Үшінші кезең EN1822 сәйкес MPPS үшін 99,95% тиімділік рейтингі бар H13 сүзгі класындағы HEPA сүзгіден тұрады. Nederman OSF мұнарасының барлық қондырғылары алдын ала сүзгіні орнатуға дайындалған. OSF 1500FC құрылғысында кіріктірілген радиалды желдеткіш бар.

  • Фильтрацияның үш кезеңі
  • Фильтрацияның әрбір сатысында қысымның төмендеуін оқуға арналған сенсорлар
  • Ықшам дизайн
  • Қысқыш сақинасы бар екі ø 200 мм кіріс
  • Стартер мен қозғалтқышты қорғау кіреді
Техникалық деректер
Сертификаттау CE
Стандартты 2009/125/EC
Көлемі (тасымалдау үшін) (м³) 2.21
Қорғаныс класы IP55
Сүзу тиімділігі (%) 99,95
Орнату Үй-жайдан тыс
Материал Іші де, сырты да боялған қаңылтыр.
Сүзгіні тазалау әдісі Өздігінен төгу
Жұмыс қысымы (кПа) Макс. 2500 Па
Өнімділік (макс. ауа ағыны м3/сағ) 1500
Жұмыс температурасы 40°C (кіріктірілген желдеткіш)
Кернеу (V) 230/400
Жиілік (Гц) 50
Фазалар саны 3
Сүзгі элементтерінің саны 3
Ток (A) 7,6 / 4,4
Түс NCS-S 1005 B20G
Салмағы (кг) 270
Қуат (кВт) 2,2