OMF 4000
-             FibreDrain ® фильтр масляного тумана для непрерывной работы. 
Фильтры Nederman OMF предназначены для обработки большого количества эмульсионного тумана во время непрерывной работы. Они разработаны с учетом высокой эффективности фильтрации и низкой стоимости обслуживания.
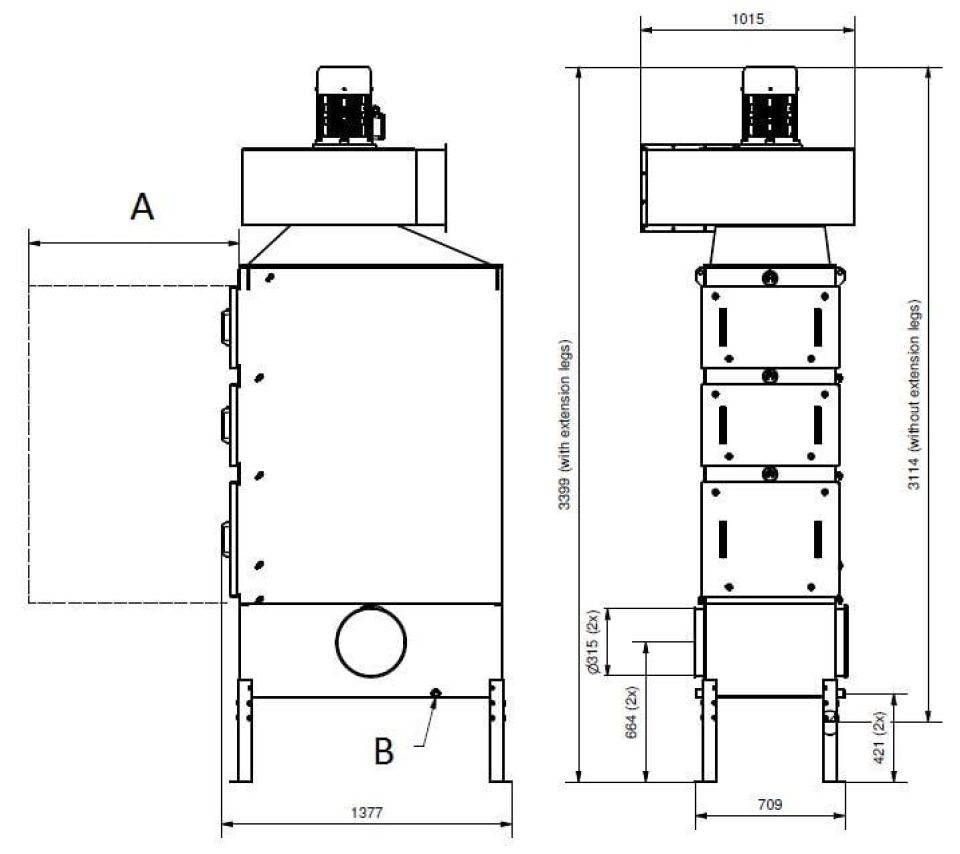
Nederman OMF 4000 имеет стандартные 3 ступени фильтра, где первый этап состоит из фильтрующих кассет с технологией FibreDrain ® от Nederman. Nederman имеет широкий спектр фильтров различных типов, подходящих для различных приложений. Второй этап состоит из фильтра HEPA в классе фильтров H13 с КПД 99,95% для MPPS согласно EN1822. Все построенные на башне блоки Nederman OMF подготовлены для использования предварительного фильтра. OMF 4000 имеет установленный сверху радиальный вентилятор .
- Три этапа фильтрации, дополнительный фильтр предварительной очистки
- Датчики для считывания перепада давления на каждом этапе фильтрации
- Удлиненные ноги
- Два входа ø 315 мм с зажимным кольцом
| Сертификаттау | CE | 
| Стандартты | 2009/125/EC | 
| Объем (для перевозки) (м³) | 5.78 | 
| Класс защиты | IP55 | 
| Сүзу тиімділігі (%) | 99,95 | 
| Орнату | Үй-жайдан тыс | 
| Материал | Листовой металл, окрашенный как внутри, так и снаружи. | 
| Жұмыс қысымы (кПа) | Макс 4000 Па | 
| Өнімділік (макс. ауа ағыны м3/сағ) | 4000 | 
| Жұмыс температурасы | 60 ° C (ограничено фильтром) | 
| Кернеу (V) | 400/690 | 
| Жиілік (Гц) | 50 | 
| Фазалар саны | 3 | 
| Сүзгі элементтерінің саны | 6 | 
| Сила тока (А) | 13 / 7,5 | 
| Түс | NCS-S 1005 B20G | 
| Салмағы (кг) | 350 | 
| Қуат (кВт) | 7,5 | 
| Техникалық мәліметтерді түсіндіру | Plus 2 optional filter elements. Incl extension legs. | 
 
