Негізгі мазмұнға өту
Ең жақсысын біріктіріп, оны сенімдіге айналдырамыз!

010000, ҚР, Астана қ.,
ст. Дінмұхамеда Қонаев 33,
кеңсе 1003
Картадағы белгі

MJC,mini картриджный фильтр

Подходит для различных условий применения, которые генерируют небольшие и средние объемы пыли. Серия компактных реверсивных струйных картриджных фильтров MJC Mini была разработана для непрерывной работы в области фильтрации промышленных процессов и пылеулавливания — с использованием запатентованной Nederman технологии картриджей UniClean для максимально эффективной очистки и срока службы.

Негізгі ерекшелігі
Стандартный фильтр от 4 до 40 м2 (43-430 футов)
Прочная стойкая стальная конструкция с защитой от атмосферных воздействий
Встроенные вентиляторы с экономией пространства от 0,75 до 3,0 кВт (1-4 часа)
Вентилятор высокого давления мощностью 4,0 кВт (5 л.с.)
Характеристики ATEX для пылей St1, St2 и St3
Встроенная камера предварительного разделения, воздушный фильтр с поперечным потоком / потоком воздуха
Модульные взаимозаменяемые сборки

Типичное управление пылью и процессы:

  • Обработка материалов — транспортировка, просеивание, просеивание, смешивание, вентилирование бункера / силоса
  • Дробь, песок и пескоструйная обработка
  • Сварка и резка
  • Химические, пластмассовые и фармацевтические порошки
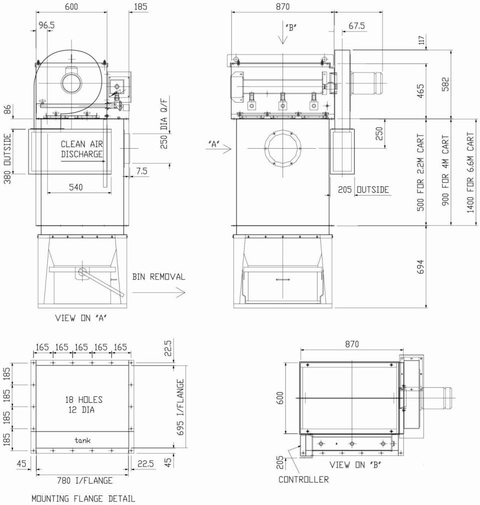
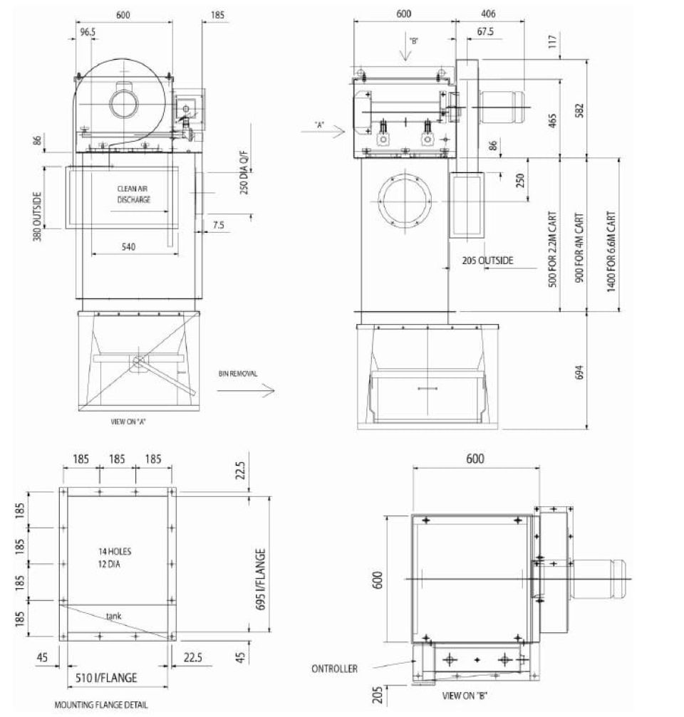
Техникалық деректер
Сертификаттау CE, EX
Требования к сжатому воздуху 5 to 5,5 bar
Орнату Сыртта, Ішкі
Материал Прочная конструкция из стали толщиной 2,5 мм, полностью свариваемая и окрашенная
Жарылғыш шаңға жарамды Иә
Сүзгіні тазалау әдісі Импульстік үрлеу
Қолданба пыль, дым
Жұмыс қысымы (кПа) Перевалка сыпучих материалов — транспортировка, просеивание, просеивание, смешивание, вентилирование бункера / силоса
Шаң контейнерінің сыйымдылығы (л) 75 или 150 л
Сүзгі ауданы (м²) От 4 до 40
Өнімділік (макс. ауа ағыны м3/сағ) 3600
Жұмыс температурасы От -20 до 80 ° С.
Сүзгі түрі Картридж сүзгісі