Негізгі мазмұнға өту
Ең жақсысын біріктіріп, оны сенімдіге айналдырамыз!

010000, ҚР, Астана қ.,
ст. Дінмұхамеда Қонаев 33,
кеңсе 1003
Картадағы белгі

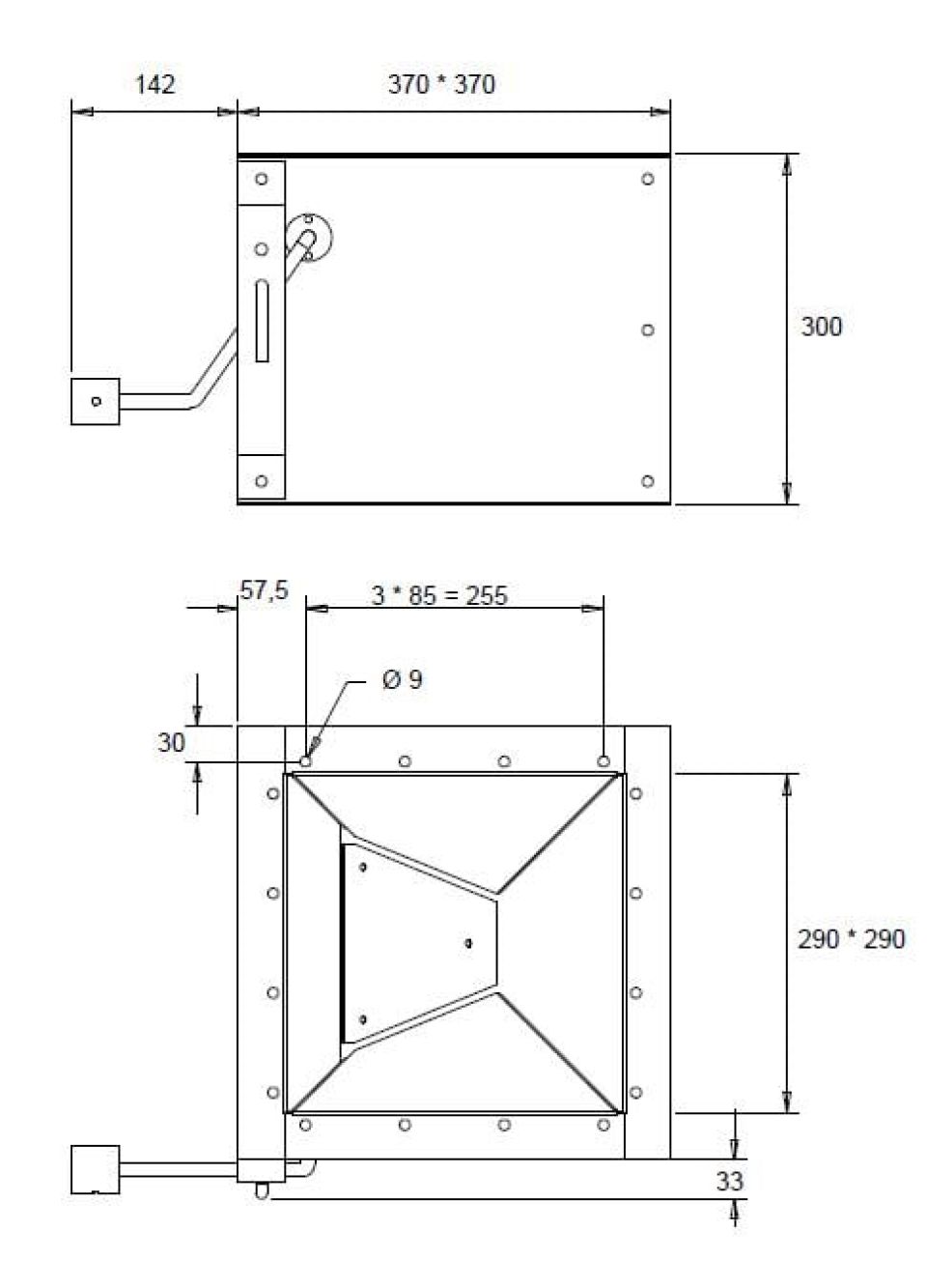
Разгрузочный клапан NFUS3

Тип клапана NFUS3 используется для выгрузки материала из FM-фильтров.
Клапан может использоваться как ручной демпфер. Плоскую пластину можно заблокировать в закрытом положении, например. в случаях, когда пылесборник должен быть разгружен во время работы.
Затем клапан можно открыть и зафиксировать в открытом положении.
Клапан также может использоваться в качестве заслонки. Здесь материал автоматически опустошается в
контейнер после остановки. Это решение может использоваться в сочетании с неклейкими, легко ссыпающимися и тяжелыми типами материалов.

Сипаттама
Демпфер типа NFUS3 выполнен из оцинкованной стальной плиты.
Прокладка из резиновой прокладки закрепляется на пластине демпфера стальной пластиной.
Демпферное отверстие больше 70 х 100 мм.

Спецификация
Демпфер стандартно поставляется с противовесом, а также штифт для фиксации пластины во внешних положениях. Только один из этих альтернатив может использоваться одновременно .

Модели

Damper type NFUS3

ArtNo: 5501395