Негізгі мазмұнға өту
Ең жақсысын біріктіріп, оны сенімдіге айналдырамыз!

010000, ҚР, Астана қ.,
ст. Дінмұхамеда Қонаев 33,
кеңсе 1003
Картадағы белгі

FM сүзгілеріне арналған қашықтағы камера

FM клапаны екі нұсқада қол жетімді: жалғыз және қос. FM клапаны барлық сүзгі өлшемдері үшін қол жетімді.

FM жалғыз клапан
Бір әрекетті клапан жоғары жарылыс қажет болған жағдайда қолданылады. Бір әрекетті клапанды сүзгіге ауа ағынының жоғары болуына байланысты кіріс өте үлкен болуы керек қолданбаларда да қолдануға болады. Шаң өте абразивті және кіріс жылдамдығы өте төмен болған жағдайларда бір әрекетті клапанды да пайдалануға болады.

FM қос клапан
Қос клапан бірнеше сүзгілерді бір сүзгіге қосу үшін қолданылады. Мұнда жарылыс әсері де жоғары болуы мүмкін.«

Модельдер

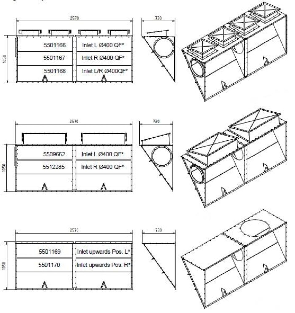
4 модульге арналған жалғыз рюкзак

Өнер №: 5509660
L, D=400 QF кіретін 8 модульге арналған жалғыз рюкзак, екі рельефтік панель

Өнер №: 5509662
8 модульге арналған жалғыз рюкзак L жоғарғы жағындағы дөңгелек кіріс

Өнер №: 5501169
8 модульге арналған жалғыз рюкзак R позициясының жоғарғы жағындағы дөңгелек кіріс

Өнер №: 5501170
6 модульді кіретін L, D=400 QF, үш рельефті панельге арналған жалғыз рюкзак

Өнер №: 5512286
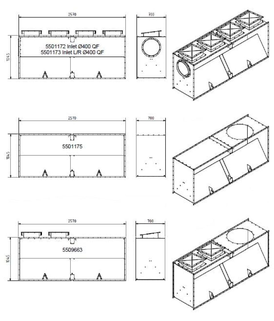
4 модульге арналған қос рюкзак

Өнер №: 5509661
8 модульге арналған қос рюкзак екі рельефті панель және жоғарыдан дөңгелек кіріс

Өнер №: 5509663