MCP Умный фильтр
-
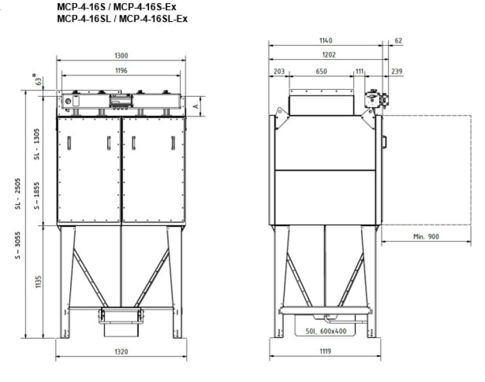
Картриджный фильтр для установки внутри и снаружи помещений. Этот фильтр может применяться в различных типах производств образующих пыль.
MCP SmartFilter - көп мақсатты сүзу жүйесі. Оны 28 000 м³/сағ ауа ағынымен тұтынушылардың нақты талаптарын тамаша қанағаттандыру үшін конфигурациялауға болады. Ол тұманға, түтінге және шаңға жарамды және дәнекерлеу, металл кесу және жалпы өнеркәсіптік шаңды қоса алғанда, әртүрлі қолданбаларда қолданылуы мүмкін.
Модульдік дизайн кеңірек қолданбалар үшін дербес блоктармен де, бірнеше бірліктермен де шешімдерге мүмкіндік береді. Жаңа, инновациялық, төртбұрышты дөңгелек сүзгі картриджі дизайны шаң жинағыштың ішкі аймағын оңтайландырып, картридждер арқылы жоғары ауа ағынын қамтамасыз етеді. Бұл құрылғының өлшемін және, тиісінше, оның ізін азайтады.
Сүзгі корпусы 2 мм болат панельдерден жасалған, бұл орнатуды жеңілдетеді, тасымалдауды үнемді және коррозияға төзімді етеді. Бұл дизайн төмен пайдалану шығындарымен ұзақ қызмет ету мерзіміне арналған.
Контроллер с подготовкой для облачной платформы Insight с передовой логической системой импульсной очистки предусматривает полный контроль и мониторинг работы системы, также как и шлюз для функциональной коммуникации с облачной платформой.
MCP SmartFilter желдеткіштер, кіріс адаптерлері, шаң контейнерлері және т.б. қоса алғанда, керек-жарақтардың кең ауқымымен қол жетімді және картридждерді әртүрлі сүзгі материалдарының ішінен таңдауға болады.
- Insight Analytics көмегімен сүзу жүйеңізді бақылауға алыңыз. Недерманның бірегей бақылау технологиясы
- Ауа ағыны жоғары сүзгі картриджінің инновациялық дизайны арқасында оңтайлы із
- Смарт тазалау жүйесі, ұзақ картридждің қызмет ету мерзімі және оңтайлы ізі арқылы операциялық шығындарды азайтады
- Болашаққа дайын жүйе сізді IoT (заттардың интернеті) – Insight Ready-ге дайындайды.
- Контроллер, HMI интерфейсі және желілік шлюз – барлығы бір Insight басқару тақтасында.
| Сертификаттау | CE |
| Қысылған ауаны тұтыну | 60 литров на один пульс очистки при давлении сжатого воздуха 6 бар |
| Орнату | Сыртта, Ішкі |
| Материал | 2мм гальванизированный стальной лист |
| Жарылғыш шаңға жарамды | No |
| Сүзгіні тазалау әдісі | Импульстік үрлеу |
| Қолданба | түтін, шаң |
| Жұмыс қысымы (кПа) | Макс. вакуум 6 кПа. Макс. избыточное давление 0 Pa. (1,5 кПа для версии сверху силоса) |
| Шаң контейнерінің сыйымдылығы (л) | 50 л или 100 л контейнер |
| Өнімділік (макс. ауа ағыны м3/сағ) | 4500 — 28000 |
| Жұмыс температурасы | -20 до +70 град. C. |
| Сүзгі түрі | Картридж сүзгісі |
| Сүзгі материалы | Қолдану аймағына байланысты |
| Техникалық мәліметтерді түсіндіру | Конфигурацияланған өнім |